OMG A SERİSİ - RADYAL FAN

ENDÜSTRİYEL RADYAL FAN YÜKSEK BASINÇLI GERİYE EĞİMLİ SEYREK KANATLI

OMG A Serisi Özellikleri

  • Üretim Aralığı 4.000 M³/H - 30.000 M³/H
  • Döküm Fan Göbeği (Gjs 250 Mangan Fosfat Kaplama )
  • Konik Burç ile Bağlantı
  • Elektrostatik Toz Boyalı (Tgis Free)
  • Temizleme & Bakım Kapağı
  • Taşıma & Kaldırma Aparatı
  • Aerodinamik Emiş Hunisi
  • Yüksek Verimlilik Düşük Enerji Tüketimi
  • Güçlendirilmiş Gövde Yapısı
  • Sızdırmazlık
  • Opsiyonel Şase ve Titreşim Takozları
  • Sıcaklık Dayanımı -20 °C + 120 °C
  • Yön Belirtilmediği Takdirde Standart Resimdeki Şekilde İmal Edilecektir.

OMG A Serisifabrika havalandırması, maden havalandırması, davlumbazı havalandırması v.b. ortamlarda kullanılır.

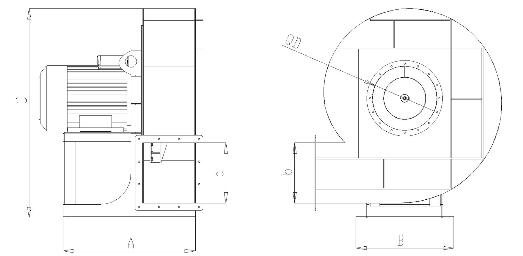
Ölçüler

        Emiş Atış
MODEL A B C D a b
OMG A1 330 270 585 180 160 150
OMG A2 340 280 620 190 180 150
OMG A3 380 260 680 210 200 170
OMG A4 420 270 725 230 200 200
OMG A5 440 360 785 250 240 200
OMG A6 470 380 825 260 250 220
OMG A7 520 390 865 280 250 250
OMG A8 560 400 940 310 300 250
OMG A9 690 460 1000 330 300 280
OMG A10 725 460 1060 350 320 300
OMG A11 735 470 1105 360 370 300
OMG A12 745 510 1180 380 400 300
OMG A13 815 560 1240 400 400 320
OMG A14 850 590 1310 420 400 340
OMG A15 880 650 1395 430 400 350

 

OMG A SERİSİ MODEL ÖZELLİKLERİ           
 
VOLTAJ FREKANS YALITIM SINIFI KORUMA SINIFI VERİM SINIFI KURULUM DÜZENİ MOTOR GÜCÜ MOTOR DEVRİ MAX.HAVA DEBİSİ MAX.BASINÇ AĞIRLIK
OMG A (V) (hz) (IC) (IP) (EC) (M) (KW) (R.P.M) (M³/H) (PA) (KG)
OMG A1 380 50 F 55 IE3 B35 1,1 3000 4000 2500  
OMG A2 380 50 F 55 IE3 B35 1,5 3000 5000 2800  
OMG A3 380 50 F 55 IE3 B35 2,2 3000 6000 3200  
OMG A4 380 50 F 55 IE3 B35 3 3000 7000 4000  
OMG A5 380 50 F 55 IE3 B35 4 3000 8000 4500  
OMG A6 380 50 F 55 IE3 B35 5,5 3000 9000 5200  
OMG A7 380 50 F 55 IE3 B35 7,5 3000 11000 6200  
OMG A8 380 50 F 55 IE3 B35 11 3000 13000 6500  
OMG A9 380 50 F 55 IE3 B35 15 3000 15000 8000  
OMG A10 380 50 F 55 IE3 B35 18,5 3000 17000 9000  
OMG A11 380 50 F 55 IE3 B35 22 3000 19000 10000  
OMG A12 380 50 F 56 IE4 B35 30 3000 21000 11000  
OMG A13 380 50 F 57 IE5 B35 37 3000 24000 13500  
OMG A14 380 50 F 58 IE6 B35 45 3000 27000 14000  
OMG A15 380 50 F 59 IE7 B35 55 3000 30000 16000  

 

OMG A BASINÇ TABLOSU ( PA )
BASINÇ TABLOSU (PA)
0 1000 2000 3000 4000 5000 6000 7000 8000 10000 12000 14000 16000 HAVA DEBİSİ (M³/H)
OMG A1 4000 3000 1800                    
OMG A2 5000 3400 2000                    
OMG A3 6000 4600 3400 2000                  
OMG A4 7000 5700 4500 3000 1500                
OMG A5 8000 6800 5750 4500 3000                
OMG A6 9000 8000 6900 5500 4000 2000              
OMG A7 11000 9000 8000 7000 5500 4000 2000            
OMG A8 13000 11000 10000 9000 8000 6500 5000            
OMG A9 15000 13000 12000 11000 10000 8000 7000            
OMG A10 17000 15000 13500 12500 11500 10000 9000 7000 5500        
OMG A11 19000 17000 16000 15000 14000 13000 11000 10000 8000 6000      
OMG A12 21000 19000 18000 17000 16000 15000 14000 12500 11000 8000      
OMG A13 24000 21000 20000 19000 18000 17000 16000 14500 13000 10000 6000    
OMG A14 27000 25000 23000 21500 20000 19000 18000 17000 16000 13000 9000 6000  
OMG A15 30000 27000 25000 23000 22000 21000 20000 19000 18000 16000 13000 10000 6000

 

DİREKT AKUPLE FAN YÖN TABLOSU